top of page

LUSH SHOP SWITZERLAND
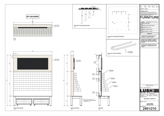
I worked for Lush as a full-time store design for a total of eight years.
Three of these years I lived and worked in Vancouver, Canada, design Lush shops for the North American team.
I then moved back to the UK and joined the UK team as an international store design working with partners in countries such as South and Central America, South Africa, UAE, Asia and Europe.
Lush approached Tickbox Design and I continued to work on projects for them on a freelance basis.
Here is an example of a project that I worked on post full-time employment.
bottom of page












